新築一戸建て
アイコンの説明
値下げ2週間以内の価格更新
新情報2週間以内の新規公開物件
毎土日祝売出現地・オープンハウス開催中
スマホ・PCで内見360°パノラマツアー公開中
すぐ見れる完成済みや空家のお家を気軽に内見
2号棟|設備性能にこだわった新築3LDK+カースペース1台駐車可能
食洗機・浴室乾燥機・電動シャッターなど毎日の家事を支える標準設備が充実♪
◆「立川」駅バス14分◆建物保証10年◆地盤保証20年◆
写真枚数:11枚
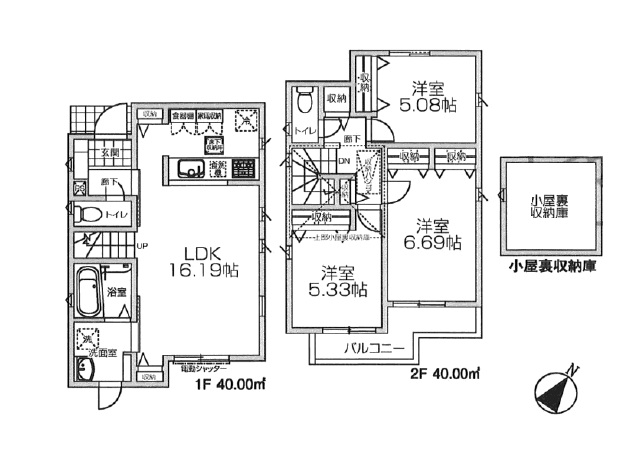
< 2号棟:3LDK+カースペース1台可能 >
◆ 居室の広さと収納力を重視した、ゆとりの3LDK
LDKは約16.1帖。
キッチンから洗面・浴室までが近く、水まわりがまとまった家事ラク動線が魅力です。
さらに小屋裏収納付きで、季節用品や思い出の品もしっかり収納可能。
「部屋を広く・すっきり使いたい」ご家族におすすめの住まいです。
◆ 安心・省エネ・快適性に配慮した、新築一戸建て
○小学校まで徒歩9分、中学校も徒歩圏内。
保育園は徒歩1分と、子育て世帯にうれしい環境です。
○コンビニ徒歩5分、スーパー・ドラッグストアも徒歩10分圏内。
毎日の買い物が身近で、忙しい日々も安心。
・ベタ基礎・基礎パッキン工法
・地盤保証20年(ジャパンホームシールド)
・建物保証10年(住宅保証機構による主要構造部)
・土台は檜105角KD(乾燥材)
・省エネ型トイレ
・省エネ型給湯器「エコジョーズ」
・フリーバス照明
・LED照明(一部を除く)
・バスワンタッチシャワー水栓
・全室アルミ樹脂複合サッシ+Low-Eガラス
・フラット35省エネ適合金利Bプラン「優付可」(別途費用)
・浴室暖房換気乾燥機
・人工大理石シンク・天板一体型システムキッチン(ソフトクローズ機構付)
・食器洗浄乾燥機
・スマートパネル型レンジフード
・キッチン家電収納付カップボード
・トイレ収納付
・1階LDK電動シャッター採用
・全室照明器具付
・ベランダ手掛け2組設置
・宅配ボックス
・キッチンハンドシャワー付浄水栓
・4面化粧パネルシステムバス
・TVモニター付インターホン
・全室ペアガラスサッシ
・全室網戸付
・玄関ドア カードキーまたはタグキーシステム採用
--------------------------------------------------------
| 小学校区 | 立川市立南砂小学校(東京都立川市)この学区の他の物件を見る |
|---|---|
| 中学校区 | 立川第二中学校(東京都立川市)この学区の他の物件を見る |
※物件情報の学区情報について
当サイト物件情報に記載されております通学区域(学区)情報は、国土数値情報ダウンロードサービスが提供する小学校区データ【2016年度】及び中学校区データ【2016年度】を元に加工したものですので、記載情報が現在の学区域と異なる場合がございます。
国土数値情報ダウンロードサービスのWEBサイト上で記述通り、データは必ずしも正確とは言えません。また、通学区域(学区)は毎年見直しの対象となりますので、そちらを踏まえ学区情報は参考としてご活用下さい。
| 価格 | 万円 | ||
|---|---|---|---|
| 年利率 | % |
||
| ボーナス払い | |||
| 返済年数 | |||
| 頭金 | 万円 | ||

毎月のご返済額 |
ボーナス(×年2回) |
物件価格5,930万円 |
| 価格 | 5,930万円 | ||
|---|---|---|---|
| 物件種別 | 新築一戸建て | ||
| 所在地 | 東京都立川市栄町3丁目 | ||
| 交通 | JR中央線 立川 栄町三丁目 バス14分 停歩4分 | ||
| 土地面積 | 100.05m² (30.27坪) | ||
| 建物面積 | 80u | ||
| 築年月 | 2026年5月築 | ||
| 間取り | 3LDK | ||
| 採光面 | - | 構造/階数 | 木造/-階建 |
| 建ぺい率 | 40(%) | 容積率 | 80(%) |
| 駐車場 | 有 | 現況/引渡し | 未完成/相談 |
| 土地権利 | 所有権 | 私道負担面積 | なし |
| 接道状況 | 接道: 北 5.25m 公道 | ||
| 用途地域 |
第一種低層住居専用地域
-
|
||
| 地目 | 宅地 | ||
| 地勢 | |||
| セットバック | なし | ||
| 取引態様 | 仲介 | ||
| 法令上の制限 | 第一種高度地区、法第22条区域、景観法、航空法、盛土規制法、重要土地調査法(注視区域) | ||
| 建築確認番号 | 第25UDI1T建03798号 | ||
| 都市計画 | 市街化区域 | ||
| 情報更新日 | 2026年04月10日 | ||
| 次回更新日 | 2026年04月24日 | ||
※各種情報と差異がある場合は現況優先となります


立川市栄町3丁目
5830万円〜5930万円
価格
5,930万円
所在地
東京都立川市栄町3丁目
交通
JR中央線 立川 栄町三丁目 バス14分 停歩4分
土地面積
100.05m²
建物面積
80u 3LDK
物件番号:RHS-tsk-978-2
電話で問い合わせ
0120-034-021
この物件を
携帯で見る

条件を指定して探す
家とともに育む喜びを
「わが家」で。
弊社では、東大和市・
武蔵村山市・立川市エリアを
中心に 戸建て・マンション・
土地の売却に関するご相談を
うけたまわっております。