中古マンション
アイコンの説明
値下げ2週間以内の価格更新
新情報2週間以内の新規公開物件
毎土日祝売出現地・オープンハウス開催中
スマホ・PCで内見360°パノラマツアー公開中
すぐ見れる完成済みや空家のお家を気軽に内見
☆新規リフォーム物件!「武蔵砂川」駅徒歩7分で通勤通学に便利なエリア☆
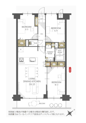
占有面積72.15u!LDK16.1帖以上+全居室5帖以上のゆったりとした3LDK♪
◆南東向き◆ペット飼育OK(細則あり)◆オートロック◆小学校至近◆
写真枚数:8枚














| 小学校区 | 立川市立上砂川小学校(東京都立川市)この学区の他の物件を見る |
|---|---|
| 中学校区 | 立川第五中学校(東京都立川市)この学区の他の物件を見る |
※物件情報の学区情報について
当サイト物件情報に記載されております通学区域(学区)情報は、国土数値情報ダウンロードサービスが提供する小学校区データ【2016年度】及び中学校区データ【2016年度】を元に加工したものですので、記載情報が現在の学区域と異なる場合がございます。
国土数値情報ダウンロードサービスのWEBサイト上で記述通り、データは必ずしも正確とは言えません。また、通学区域(学区)は毎年見直しの対象となりますので、そちらを踏まえ学区情報は参考としてご活用下さい。
| 価格 | 万円 | ||
|---|---|---|---|
| 年利率 | % |
||
| ボーナス払い | |||
| 返済年数 | |||
| 頭金 | 万円 | ||

毎月のご返済額 |
ボーナス(×年2回) |
物件価格2,690万円 |
| マンション名 | ライオンズマンション武蔵砂川ライオンズマンション武蔵砂川 | ||
|---|---|---|---|
| 価格 | 2,690万円 | ||
| 物件種別 | 中古マンション | ||
| 所在地 |
東京都立川市上砂町5丁目15-1
|
||
| 交通 |
西武拝島線 武蔵砂川 徒歩7分
JR中央線 立川 立川バス[立12-1] 砂川町八丁目 バス13分 停歩5分 |
||
| 専有面積 | 72.15u | ||
| 築年月 | 1989年1月築 | ||
| 管理費等 | 9,200円 | ||
| 修繕積立金 | 23,810円 | ||
| 所在階/階数 | 4階/地上7階建 | ||
| バルコニー面積 | 7.15m² | ||
| 間取り | 3LDK | ||
| 採光面 | 東南 | 取引態様 | 仲介 |
| 現況 | 空家 | 引渡し | 相談 |
| 総戸数 | 117戸 | 構造 | RC造 |
| テラス面積 | - | 専用庭面積 | - |
| 駐車場 | 有:9,000円/月 | 駐輪場 | 有 |
| 建物権利 | 所有権 | 土地権利 | 所有権 |
| 管理態様 | 管理形態:- 管理組合:あり 管理会社:椛蜍档Aステージ/全部委託(日勤) |
||
| 用途地域 |
工業地域
-
-
|
||
| 情報更新日 | 2026年05月22日 | ||
| 次回更新日 | 2026年06月05日 | ||
※各種情報と差異がある場合は現況優先となります
価格
2,690万円
所在地
交通
西武拝島線 武蔵砂川 徒歩7分
JR中央線 立川 立川バス[立12-1] 砂川町八丁目 バス13分 停歩5分
土地面積
-
建物面積
72.15u 3LDK
物件番号:RHS-tm-014-010(4F)
電話で問い合わせ
0120-034-021
この物件を
携帯で見る

条件を指定して探す
家とともに育む喜びを
「わが家」で。
弊社では、東大和市・
武蔵村山市・立川市エリアを
中心に 戸建て・マンション・
土地の売却に関するご相談を
うけたまわっております。