新築一戸建て
アイコンの説明
値下げ2週間以内の価格更新
新情報2週間以内の新規公開物件
毎土日祝売出現地・オープンハウス開催中
スマホ・PCで内見360°パノラマツアー公開中
すぐ見れる完成済みや空家のお家を気軽に内見
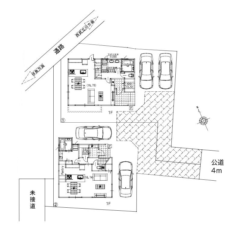
☆屋上スカイバルコニー付き!LDK19.7帖の広々4LDK+並列2台駐車可☆
土間収納+パントリー付き。家族の会話が広がる対面キッチンの住まい♪
◆敷地53坪◆南向きLDK◆小学校徒歩10分◆公園徒歩5分◆
写真枚数:8枚










| 小学校区 | 昭島市立拝島第二小学校(東京都昭島市)この学区の他の物件を見る |
|---|---|
| 中学校区 | 拝島中学校(東京都昭島市)この学区の他の物件を見る |
※物件情報の学区情報について
当サイト物件情報に記載されております通学区域(学区)情報は、国土数値情報ダウンロードサービスが提供する小学校区データ【2016年度】及び中学校区データ【2016年度】を元に加工したものですので、記載情報が現在の学区域と異なる場合がございます。
国土数値情報ダウンロードサービスのWEBサイト上で記述通り、データは必ずしも正確とは言えません。また、通学区域(学区)は毎年見直しの対象となりますので、そちらを踏まえ学区情報は参考としてご活用下さい。
| 価格 | 万円 | ||
|---|---|---|---|
| 年利率 | % |
||
| ボーナス払い | |||
| 返済年数 | |||
| 頭金 | 万円 | ||

毎月のご返済額 |
ボーナス(×年2回) |
物件価格4,780万円 |
| 価格 | 4,780万円 | ||
|---|---|---|---|
| 物件種別 | 新築一戸建て | ||
| 所在地 | 東京都昭島市美堀町1丁目 | ||
| 交通 |
西武拝島線 西武立川 徒歩12分
JR八高線 拝島 徒歩20分 JR青梅線 拝島 徒歩20分 |
||
| 土地面積 | 175.63m² (53.13坪) | ||
| 建物面積 | 107.98u | ||
| 築年月 | 2026年8月築 | ||
| 間取り | 4LDK | ||
| 採光面 | 南 | 構造/階数 | 木造/地上2階建 |
| 建ぺい率 | 40(%) | 容積率 | 80(%) |
| 駐車場 | 有 | 現況/引渡し | 未完成/相談 |
| 土地権利 | 所有権 | 私道負担面積 | - |
| 接道状況 | 接道: 東南 4m 公道 | ||
| 用途地域 |
第一種低層住居専用地域
-
|
||
| 地目 | 宅地 | ||
| 地勢 | |||
| セットバック | - | ||
| 取引態様 | 仲介 | ||
| 法令上の制限 | 第1種高度地区、景観法、航空法、宅地造成工事規制区域、高さ最高限度あり、日影制限有、一部協定通路、都市計画区域内、第22条区域 | ||
| 建築確認番号 | 第JTC25Y-AZ0413-00号他 | ||
| 都市計画 | 市街化区域 | ||
| 情報更新日 | 2026年05月15日 | ||
| 次回更新日 | 2026年05月29日 | ||
※各種情報と差異がある場合は現況優先となります


昭島市美堀町1丁目
4780万円〜4980万円
価格
4,780万円
所在地
東京都昭島市美堀町1丁目
交通
西武拝島線 西武立川 徒歩12分
JR八高線 拝島 徒歩20分
JR青梅線 拝島 徒歩20分
土地面積
175.63m²
建物面積
107.98u 4LDK
物件番号:RHS-ask-118-1
電話で問い合わせ
0120-034-021
この物件を
携帯で見る

条件を指定して探す
家とともに育む喜びを
「わが家」で。
弊社では、東大和市・
武蔵村山市・立川市エリアを
中心に 戸建て・マンション・
土地の売却に関するご相談を
うけたまわっております。