中古一戸建て
アイコンの説明
値下げ2週間以内の価格更新
新情報2週間以内の新規公開物件
毎土日祝売出現地・オープンハウス開催中
スマホ・PCで内見360°パノラマツアー公開中
すぐ見れる完成済みや空家のお家を気軽に内見
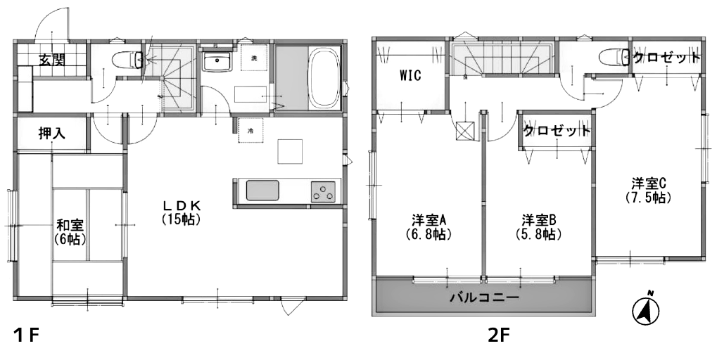
☆2016年築・新規リフォーム済の4LDK。全室南向きで、明るさと開放感に包まれた住まい☆
対面キッチンや1坪バス、WICなど設備も充実。第一種低層住居専用地域の落ち着いた街並みに加え、
保育園・幼稚園・スーパー・ドラッグストアが徒歩圏に揃う暮らしやすい住環境も魅力です。
写真枚数:11枚











| 小学校区 | 武蔵村山市立第九小学校(東京都武蔵村山市)この学区の他の物件を見る |
|---|---|
| 中学校区 | 第四中学校(東京都武蔵村山市)この学区の他の物件を見る |
※物件情報の学区情報について
当サイト物件情報に記載されております通学区域(学区)情報は、国土数値情報ダウンロードサービスが提供する小学校区データ【2016年度】及び中学校区データ【2016年度】を元に加工したものですので、記載情報が現在の学区域と異なる場合がございます。
国土数値情報ダウンロードサービスのWEBサイト上で記述通り、データは必ずしも正確とは言えません。また、通学区域(学区)は毎年見直しの対象となりますので、そちらを踏まえ学区情報は参考としてご活用下さい。
| 価格 | 万円 | ||
|---|---|---|---|
| 年利率 | % |
||
| ボーナス払い | |||
| 返済年数 | |||
| 頭金 | 万円 | ||

毎月のご返済額 |
ボーナス(×年2回) |
物件価格3,297万円 |
| 価格 | 3,297万円 | ||
|---|---|---|---|
| 物件種別 | 中古一戸建て | ||
| 所在地 | 東京都武蔵村山市学園5丁目 | ||
| 交通 |
西武拝島線 武蔵砂川 徒歩29分
西武拝島線 玉川上水 東経大入口 バス14分 停歩2分 |
||
| 土地面積 | 132.05m² (39.95坪) | ||
| 建物面積 | 99.37u | ||
| 築年月 | 2016年9月築 | ||
| 間取り | 4LDK | ||
| 採光面 | - | 構造/階数 | 木造/地上2階建 |
| 建ぺい率 | 40(%) | 容積率 | 80(%) |
| 駐車場 | 有 | 現況/引渡し | 空家/相談 |
| 土地権利 | 所有権 | 私道負担面積 | - |
| 接道状況 | 接道: 北西 5m 公道 | ||
| 用途地域 |
第一種低層住居専用地域
-
|
||
| 地目 | 宅地 | ||
| 地勢 | |||
| セットバック | - | ||
| 取引態様 | 仲介 | ||
| 法令上の制限 | 第一種高度地区、建築基準法22条区域 | ||
| 建築確認番号 | |||
| 都市計画 | 市街化区域 | ||
| 情報更新日 | 2026年05月15日 | ||
| 次回更新日 | 2026年05月29日 | ||
※各種情報と差異がある場合は現況優先となります
価格
3,297万円
所在地
東京都武蔵村山市学園5丁目
交通
西武拝島線 武蔵砂川 徒歩29分
西武拝島線 玉川上水 東経大入口 バス14分 停歩2分
土地面積
132.05m²
建物面積
99.37u 4LDK
物件番号:RHS-mck-960
電話で問い合わせ
0120-034-021
この物件を
携帯で見る

条件を指定して探す
家とともに育む喜びを
「わが家」で。
弊社では、東大和市・
武蔵村山市・立川市エリアを
中心に 戸建て・マンション・
土地の売却に関するご相談を
うけたまわっております。