新築一戸建て
アイコンの説明
値下げ2週間以内の価格更新
新情報2週間以内の新規公開物件
毎土日祝売出現地・オープンハウス開催中
スマホ・PCで内見360°パノラマツアー公開中
すぐ見れる完成済みや空家のお家を気軽に内見
☆プライバシー性の高い立地で、落ち着いた暮らしが叶う4LDK☆
パントリーやガス衣類乾燥機「乾太くん」、食洗機など毎日の家事がラクになる設備仕様も充実♪
◆カースペース縦列2台駐車可(車種制限あり)◆バス停徒歩5分◆都市ガス◆
写真枚数:9枚



















| 小学校区 | 東大和市立第一小学校(東京都東大和市)この学区の他の物件を見る |
|---|---|
| 中学校区 | 第一中学校(東京都東大和市)この学区の他の物件を見る |
※物件情報の学区情報について
当サイト物件情報に記載されております通学区域(学区)情報は、国土数値情報ダウンロードサービスが提供する小学校区データ【2016年度】及び中学校区データ【2016年度】を元に加工したものですので、記載情報が現在の学区域と異なる場合がございます。
国土数値情報ダウンロードサービスのWEBサイト上で記述通り、データは必ずしも正確とは言えません。また、通学区域(学区)は毎年見直しの対象となりますので、そちらを踏まえ学区情報は参考としてご活用下さい。
| 価格 | 万円 | ||
|---|---|---|---|
| 年利率 | % |
||
| ボーナス払い | |||
| 返済年数 | |||
| 頭金 | 万円 | ||

毎月のご返済額 |
ボーナス(×年2回) |
物件価格3,380万円 |
※各種情報と差異がある場合は現況優先となります
価格
3,380万円
所在地
交通
西武多摩湖線 武蔵大和 徒歩18分
西武拝島線 東大和市 [立35] 塩釜神社前 バス14分 停歩5分
JR中央線 立川 [立35] 塩釜神社前 バス43分 停歩5分
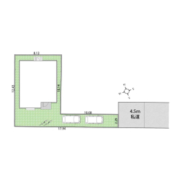
土地面積
123.25m²
建物面積
98.58u 4LDK
物件番号:RHS-u-360
電話で問い合わせ
0120-034-021
この物件を
携帯で見る

条件を指定して探す
家とともに育む喜びを
「わが家」で。
弊社では、東大和市・
武蔵村山市・立川市エリアを
中心に 戸建て・マンション・
土地の売却に関するご相談を
うけたまわっております。