新築一戸建て
アイコンの説明
値下げ2週間以内の価格更新
新情報2週間以内の新規公開物件
毎土日祝売出現地・オープンハウス開催中
スマホ・PCで内見360°パノラマツアー公開中
すぐ見れる完成済みや空家のお家を気軽に内見
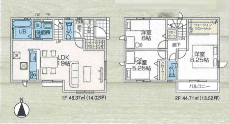
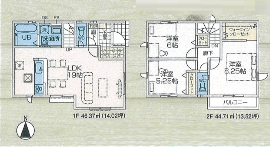
<2号棟>LDK19帖×大容量WIC付き3LDK。駐車2台可。
小・中学校徒歩5分圏内、生活施設も徒歩圏に充実。
ZEH水準|長期優良住宅|住宅性能評価W取得|都市ガス|浴室乾燥機
写真枚数:47枚
| 小学校区 | 東大和市立第六小学校(東京都東大和市)この学区の他の物件を見る |
|---|---|
| 中学校区 | 第三中学校(東京都東大和市)この学区の他の物件を見る |
※物件情報の学区情報について
当サイト物件情報に記載されております通学区域(学区)情報は、国土数値情報ダウンロードサービスが提供する小学校区データ【2016年度】及び中学校区データ【2016年度】を元に加工したものですので、記載情報が現在の学区域と異なる場合がございます。
国土数値情報ダウンロードサービスのWEBサイト上で記述通り、データは必ずしも正確とは言えません。また、通学区域(学区)は毎年見直しの対象となりますので、そちらを踏まえ学区情報は参考としてご活用下さい。
| 価格 | 万円 | ||
|---|---|---|---|
| 年利率 | % |
||
| ボーナス払い | |||
| 返済年数 | |||
| 頭金 | 万円 | ||

毎月のご返済額 |
ボーナス(×年2回) |
物件価格3,680万円 |
| 価格 | 3,680万円 | ||
|---|---|---|---|
| 物件種別 | 新築一戸建て | ||
| 所在地 | 東京都東大和市仲原2丁目 | ||
| 交通 |
西武拝島線 東大和市 徒歩22分
西武多摩湖線 武蔵大和 徒歩22分 西武新宿線 久米川 団地北 バス13分 停歩9分 |
||
| 土地面積 | 110.13m² (33.31坪) | ||
| 建物面積 | 91.08u | ||
| 築年月 | 2025年12月築 | ||
| 間取り | 3LDK | ||
| 採光面 | - | 構造/階数 | 木造/地上2階建 |
| 建ぺい率 | 50(%) | 容積率 | 100(%) |
| 駐車場 | 有 | 現況/引渡し | 完成/即時 |
| 土地権利 | 所有権 | 私道負担面積 | - |
| 接道状況 | 接道: 東 6m 公道 | ||
| 用途地域 |
第一種低層住居専用地域
-
|
||
| 地目 | 宅地 | ||
| 地勢 | |||
| セットバック | なし | ||
| 取引態様 | 仲介 | ||
| 法令上の制限 | 景観法による規制有/航空法による規制有/高度地区/準防火地域/高さ最高限度有/敷地面積最低限度有/日影制限有 | ||
| 建築確認番号 | 第TKK建確25-108号 | ||
| 都市計画 | 市街化区域 | ||
| 情報更新日 | 2026年05月24日 | ||
| 次回更新日 | 2026年06月07日 | ||
※各種情報と差異がある場合は現況優先となります
価格
3,680万円
所在地
東京都東大和市仲原2丁目
交通
西武拝島線 東大和市 徒歩22分
西武多摩湖線 武蔵大和 徒歩22分
西武新宿線 久米川 団地北 バス13分 停歩9分
土地面積
110.13m²
建物面積
91.08u 3LDK
物件番号:RHS-hsk-819-2
電話で問い合わせ
0120-034-021
この物件を
携帯で見る

条件を指定して探す
家とともに育む喜びを
「わが家」で。
弊社では、東大和市・
武蔵村山市・立川市エリアを
中心に 戸建て・マンション・
土地の売却に関するご相談を
うけたまわっております。