中古マンション
アイコンの説明
値下げ2週間以内の価格更新
新情報2週間以内の新規公開物件
毎土日祝売出現地・オープンハウス開催中
スマホ・PCで内見360°パノラマツアー公開中
すぐ見れる完成済みや空家のお家を気軽に内見
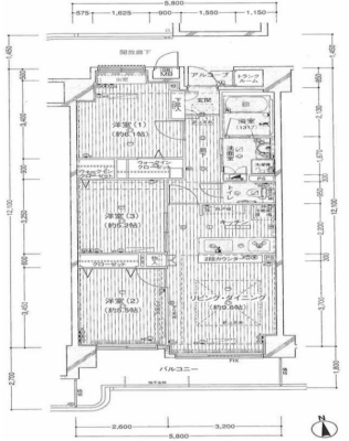
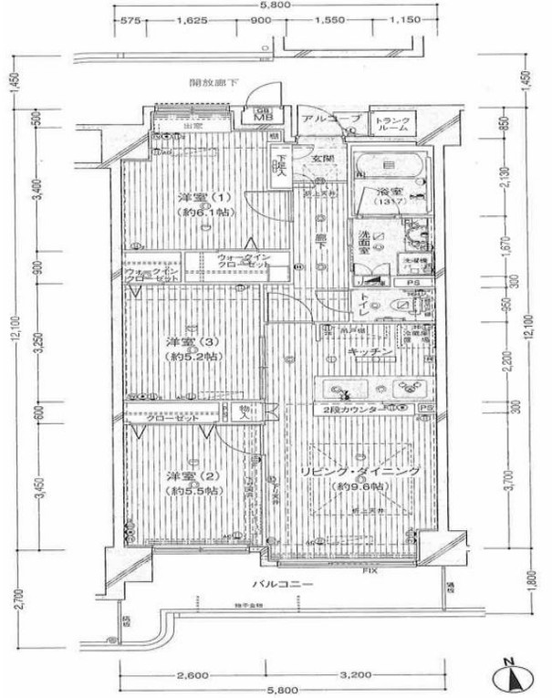
<新規リフォーム>ペット飼育可能/9階南向き3LDK+WIC×2
多摩モノレール「上北台」徒歩1分&スーパー至近でお買い物環境◎
■宅配ボックス■トランクルーム■ゆったり南向きバルコニー■
写真枚数:58枚
















| 小学校区 | 東大和市立第八小学校(東京都東大和市)この学区の他の物件を見る |
|---|---|
| 中学校区 | 第四中学校(東京都東大和市)この学区の他の物件を見る |
※物件情報の学区情報について
当サイト物件情報に記載されております通学区域(学区)情報は、国土数値情報ダウンロードサービスが提供する小学校区データ【2016年度】及び中学校区データ【2016年度】を元に加工したものですので、記載情報が現在の学区域と異なる場合がございます。
国土数値情報ダウンロードサービスのWEBサイト上で記述通り、データは必ずしも正確とは言えません。また、通学区域(学区)は毎年見直しの対象となりますので、そちらを踏まえ学区情報は参考としてご活用下さい。
| 価格 | 万円 | ||
|---|---|---|---|
| 年利率 | % |
||
| ボーナス払い | |||
| 返済年数 | |||
| 頭金 | 万円 | ||

毎月のご返済額 |
ボーナス(×年2回) |
物件価格3,990万円 |
| マンション名 | エストヴォーレ上北台エストヴォーレ上北台 | ||
|---|---|---|---|
| 価格 | 3,990万円 | ||
| 物件種別 | 中古マンション | ||
| 所在地 |
東京都東大和市立野2丁目2-5
|
||
| 交通 |
多摩都市モノレール 上北台 徒歩1分
西武拝島線 玉川上水 徒歩25分 西武多摩湖線 武蔵大和 東大和市コミュニティ 上北台駅 バス12分 停歩3分 |
||
| 専有面積 | 68.59u | ||
| 築年月 | 2003年8月築 | ||
| 管理費等 | 13,000円 | ||
| 修繕積立金 | 7,610円 | ||
| 所在階/階数 | 9階/地上10階建 | ||
| バルコニー面積 | - | ||
| 間取り | 3LDK | ||
| 採光面 | 南 | 取引態様 | 仲介 |
| 現況 | 空家 | 引渡し | 相談 |
| 総戸数 | 39戸 | 構造 | - |
| テラス面積 | - | 専用庭面積 | - |
| 駐車場 | 空無 | 駐輪場 | 有 |
| 建物権利 | 所有権 | 土地権利 | 所有権 |
| 管理態様 | 管理形態:委託(通勤) 管理組合:あり 管理会社:株式会社レーベンコミュニティ/日勤 |
||
| 用途地域 |
商業地域
-
-
|
||
| 情報更新日 | 2026年05月15日 | ||
| 次回更新日 | 2026年05月29日 | ||
※各種情報と差異がある場合は現況優先となります
価格
3,990万円
所在地
交通
多摩都市モノレール 上北台 徒歩1分
西武拝島線 玉川上水 徒歩25分
西武多摩湖線 武蔵大和 東大和市コミュニティ 上北台駅 バス12分 停歩3分
土地面積
-
建物面積
68.59u 3LDK
物件番号:RHS-hm-042-004(9F)
電話で問い合わせ
0120-034-021
この物件を
携帯で見る

条件を指定して探す
家とともに育む喜びを
「わが家」で。
弊社では、東大和市・
武蔵村山市・立川市エリアを
中心に 戸建て・マンション・
土地の売却に関するご相談を
うけたまわっております。